2123 Serenity LnArlington, TX 76015

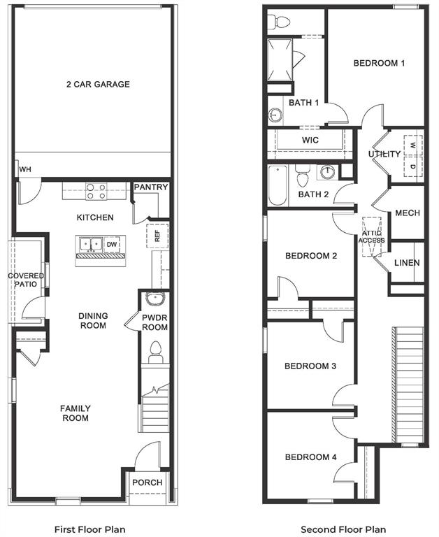
The Concord plan by D.R. Horton in the California Meadows community in Arlington, Texas, offers a modern and spacious two-story home with approximately 1,750 sq. ft. of living space. This home includes 4 bedrooms, 2.5 bathrooms, and a 2-car garage. A welcoming front porch and entry leading into an open-concept layout that seamlessly connects the dining, living, and kitchen areas, ideal for both family time and entertaining guests. A well-appointed kitchen featuring painted cabinetry, a generous walk-in pantry, quartz countertops, a large island, stainless steel appliances with gas cooking range. The dining room opens to a relaxing outdoor covered patio, providing a perfect space for outdoor enjoyment. A convenient powder bath located off the kitchen for guests' use. Vinyl flooring throughout the foyer, dining, kitchen, and family room, bathrooms, and utility room. Upstairs, the spacious Bedroom 1 suite provides a private retreat with quartz countertops, walk-in shower, a walk-in closet, and a private bathroom. Three additional bedrooms and a secondary bathroom provide ample space for family and guests. The laundry room is conveniently located upstairs. You’ll also enjoy smart home features, from your couch or from 500 miles away. You’ll never be too far from home with America’s smart home. The Concord plan offers a blend of comfort and style, ideal for families looking for a spacious home.
| 19 hours ago | Listing updated with changes from the MLS® | |
| 19 hours ago | Listing first seen on site |
© 2020 North Texas Real Estate Information Systems. All rights reserved. Information is deemed reliable but is not guaranteed accurate by the MLS or NTREIS. The information being provided is for the consumer's personal, non-commercial use, and may not be reproduced, redistributed, or used for any purpose other than to identify prospective properties consumers may be interested in purchasing.
Last checked: 2026-02-18 06:58 AM CST


Did you know? You can invite friends and family to your search. They can join your search, rate and discuss listings with you.